Wirtschaftsförderung Münster GmbH · Hafenweg 16 · D-48155 Münster · Tel +49 (251) 68642-0

Helle und funktionale Büroflächen in Münster-Nienberge

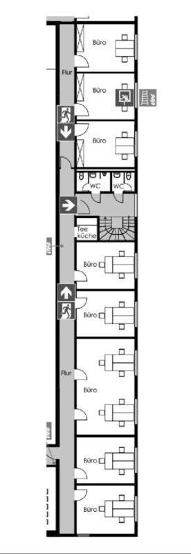
Helle und funktionale Büroflächen in Münster-Nienberge - Titelbild Helle und funktionale Büroflächen in Münster-Nienberge - Lage im Stadtgebiet makro Helle und funktionale Büroflächen in Münster-Nienberge - Lage im Stadtgebiet mikro Helle und funktionale Büroflächen in Münster-Nienberge - Luftbild Helle und funktionale Büroflächen in Münster-Nienberge - Eingang zur Einheit Helle und funktionale Büroflächen in Münster-Nienberge - Büro Helle und funktionale Büroflächen in Münster-Nienberge - Büro Helle und funktionale Büroflächen in Münster-Nienberge - Büro Helle und funktionale Büroflächen in Münster-Nienberge - Flur Helle und funktionale Büroflächen in Münster-Nienberge - Teeküche Helle und funktionale Büroflächen in Münster-Nienberge - Treppenhaus Helle und funktionale Büroflächen in Münster-Nienberge - Eingang zum Gebäude Helle und funktionale Büroflächen in Münster-Nienberge - Ladesäule Helle und funktionale Büroflächen in Münster-Nienberge - Grundriss

Beschreibung

Im 1. Obergeschoss eines gepflegten Gewerbeobjekts in Münster-Nienberge steht ab sofort eine attraktive Bürofläche mit ca. 230 m² zur Anmietung bereit. Sie verfügt über sieben Büroräume für je 2-3 Arbeitsplätze und einen Büroraum für bis zu 6 Arbeitsplätze, der sich auch als Besprechungsraum eignet. Außerdem sind eine Teeküche sowie eine separate WC-Anlage vorhanden. Die Räumlichkeiten sind mit mit einer modernen EDV-Verkabelung, Teppichboden und Glastüren ausgestattet. Durch große Fensterflächen wirken die Räume hell und ansprechend.

Die Einheit ist über einen zentralen Flur auf der westlichen Gebäudeseite erreichbar. Der Zugang erfolgt über einen Eingangsbereich, der gemeinschaftlich mit der Mieteinheit im EG genutzt wird.

Es stehen ausreichend PKW-Stellplätze am Mietobjekt zur Verfügung. Eine feste Zuordnung erfolgt nicht. Darüber hinaus sind am Objekt mehrere Ladesäulen für Elektrofahrzeuge installiert - versorgt über die PV-Anlage auf dem Gebäudedach.

Der aus drei Häusern bestehende Gebäudekomplex liegt im Münsteraner Stadtteil Nienberge im Gewerbegebiet Feldstiege, etwa sechs Minuten Fahrzeit von der Autobahnauffahrt Münster Nord (BAB 1) entfernt. In unmittelbarer Umgebung befindet sich eine Bushaltestelle. Der Hauptbahnhof Münster und der Flughafen Münster-Osnabrück sind jeweils innerhalb von 20 Minuten mit dem Pkw erreichbar.

Ein Energieausweis gem. GEG2024 liegt noch nicht vor.

Ausstattung

Es sind zahlreiche PKW-Stellplätze sind am Objekt vorhanden.

4082

Objektdaten

Objekt-ID
4082
Objekttypen
Büro/Praxis, Bürofläche
Adresse
48161 Münster / Nienberge
Gesamtfläche ca.
230 m²
Baujahr
1995
Zustand
gepflegt
Verfügbar ab
Sofort
Miete pro m²
8,50 EUR

Ihr Ansprechpartner

Marius Mlejnek
Immobilienservice Stadtteilentwicklung

Telefon: +49 251 68642-13
Telefax:

Direktanfrage

* Pflichtangaben
 SSL-verschlüsselt