Wirtschaftsförderung Münster GmbH · Hafenweg 16 · D-48155 Münster · Tel +49 (251) 68642-0

Große Kaltlagerhalle mit Büro und Werkstatt

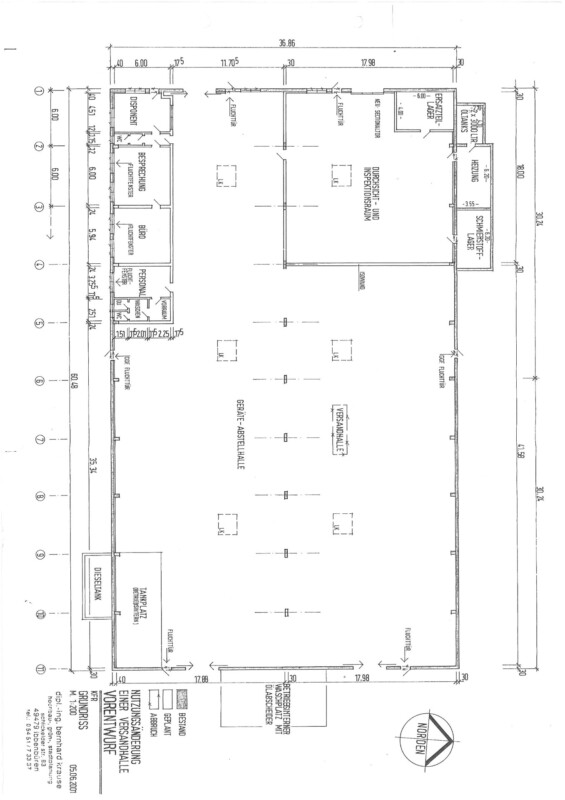
Große Kaltlagerhalle mit Büro und Werkstatt - Titelbild Große Kaltlagerhalle mit Büro und Werkstatt - Luftbild Große Kaltlagerhalle mit Büro und Werkstatt - Lageplan makro Große Kaltlagerhalle mit Büro und Werkstatt - Lageplan mikro Große Kaltlagerhalle mit Büro und Werkstatt - Außenansicht Große Kaltlagerhalle mit Büro und Werkstatt - Innenansicht Große Kaltlagerhalle mit Büro und Werkstatt - Innenansicht Große Kaltlagerhalle mit Büro und Werkstatt - Innenansicht Große Kaltlagerhalle mit Büro und Werkstatt - Innenansicht Große Kaltlagerhalle mit Büro und Werkstatt - Innenansicht Große Kaltlagerhalle mit Büro und Werkstatt - Innenansicht Große Kaltlagerhalle mit Büro und Werkstatt - Innenansicht Große Kaltlagerhalle mit Büro und Werkstatt - Innenansicht Große Kaltlagerhalle mit Büro und Werkstatt - Freifläche Große Kaltlagerhalle mit Büro und Werkstatt - Freifläche Große Kaltlagerhalle mit Büro und Werkstatt - optionale Freifläche Große Kaltlagerhalle mit Büro und Werkstatt - optionale Freifläche Große Kaltlagerhalle mit Büro und Werkstatt - Grundriss

Beschreibung

Diese großzügige Gewerbeimmobilie, verfügbar ab August 2026, eignet sich ideal für Lager-, Logistik- und Werkstattbetriebe mit hohem Platzbedarf. Das Objekt ist als Geräte-Abstellhalle genehmigt.

Insgesamt stehen ca. 2.160 m² Fläche zur Verfügung: Eine Kaltlagerhalle mit ca. 1.696 m², eine Werkstatt mit ca. 324 m² sowie Büroflächen mit ca. 140 m².
Zudem verfügt das Objekt über ca. 500 m² Freiflächen zur alleinigen Nutzung sowie bis zu ca. 1.250 m² Freiflächen zur gemeinschaftlichen Nutzung.
Optional können nördlich der Halle bis zu 1000 m² zusätzliche, eingezäunte Freilagerfläche angemietet werden (inkl. einsehbaren Werbeflächen).

Die frostfreie Halle verfügt über einen schwerlastfähigen Betonboden und mehrere elektrisch betriebene Rolltore (ca. 3,50 x 4,50 m, teils fernsteuerbar). Bodenabläufe mit Abscheider sind vorhanden. Die lichte Deckenhöhe in der Halle beträgt
- an der Traufe: 3,5 m UKB und 4,5 m zwischen den Bindern
- im Firstbereich: 6,5 m UKB und 7,44 m zwischen den Bindern.

Der integrierte Werkstattbereich ist beheizt. Ein Fundament für eine Hebebühne ist vorhanden. Ein separater Hausanschluss (ca. 40 kW, Kabelstärke 150 mm²) ist vorhanden.
Auf dem Gelände befindet sich eine genehmigte Tankstelle mit zwei Dieseltanks (ca. 10.000 L und 5.000 L), die in Rücksprache mit dem Vermieter mitgenutzt werden kann.

Der Bürobereich bietet ausreichend Verwaltungsfläche sowie Sanitärräume mit Dusche.

Die Beheizung von Werkstatt und Büro erfolgt über eine Gasheizung.

Die Immobilie ist verkehrsgünstig gelegen: Über die B51 ist das Objekt unmittelbar an das regionale und überregionale Verkehrsnetz angebunden. Eine Bushaltestelle ist fußläufig erreichbar. Die Lage ist darüber hinaus eingebettet in eine Umgebung aus Industrie- und Grünflächen.

Ein Energieausweis gem. GEG 2024 liegt derzeit noch nicht vor.

Ausstattung

Stellplätze sind ausreichend am Objekt vorhanden.

Sonstige Informationen

Nutzungen mit hohem Publikumsverkehr und 24/7 Lieferverkehr sind ausgeschlossen.

4065

Objektdaten

Objekt-ID
4065
Objekttypen
Halle, Halle/Lager/Produktion
Adresse
48157 Münster
Bürofläche ca.
140 m²
Gesamtfläche ca.
2.160 m²
Lagerfläche ca.
1.696 m²
Verfügbar ab
August 2026
Preis
auf Anfrage

Ihr Ansprechpartner

Marius Mlejnek
Immobilienservice Stadtteilentwicklung

Telefon: +49 251 68642-13
Telefax:

Direktanfrage

* Pflichtangaben
 SSL-verschlüsselt